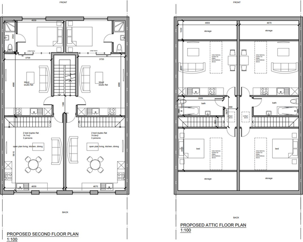
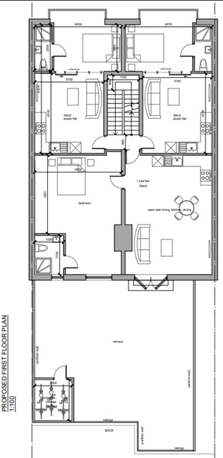
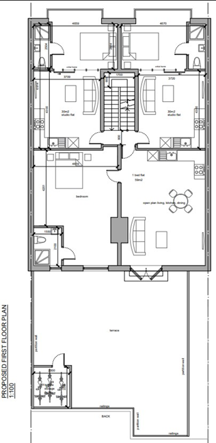
Conversion of Offices into Residential Flats

68-70 MARKET STREET HYDE, MANCHESTER SK14 1ES

Here’s a property we generated at from our sell commercial property marketing that is up and coming at our ‘Deal Clinic Tuesdays’

Click to See 'Property Clinic Deals'image/svg+xml
Unlock this exclusive content by using one of the sharing buttons below.

The Cost of Living and Impact on Housing

As the cost of living and mortgage costs keep escalating, House Prices have experienced the biggest decrease in 12 years as per Halifax. Last month saw a 2.6% annual fall in prices or £7500 which [...]

Bank of England confirms safeguard against inflation

The Bank of England issued a statement to reassure UK bank clients and financial markets after the purchase of crisis-hit Credit Suisse by competitor UBS, which was allowed by the Swiss government. After the [...]